滨江华府位于海南海口市琼山区,由海南佳佳霖实业有限公司精心打造,项目当前价格为14888元/㎡。根据项目户型、交通配套、教育配套、生活配套、小区规划等方面进行分析,滨江华府综合评分为8.5分,具体情况如下,有任何疑问,欢迎咨询专业置业顾问。滨江华府主要有3个户型92㎡的2室、60㎡的1室、95㎡的2室。,当前2个户型92㎡95㎡在售,具体户型情况如下图片和户型图
2室2厅1卫 在售,建面: 93㎡,
2室2厅1卫 在售,建面: 95㎡


建筑类型:小高层,花园洋房
产权年限:住宅、70年
容积率:1.74
绿化率:37%
规划户数:119户
楼层状况:A、D单元总高11层 B、C单元总高12层
车位数:100 (地上:56 个 地下:44个)

滨江华府 92平 2房2厅1厨1卫2阳 户型图

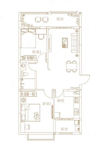
滨江华府 95平 2房2厅1厨1卫2阳 户型图

建筑类型